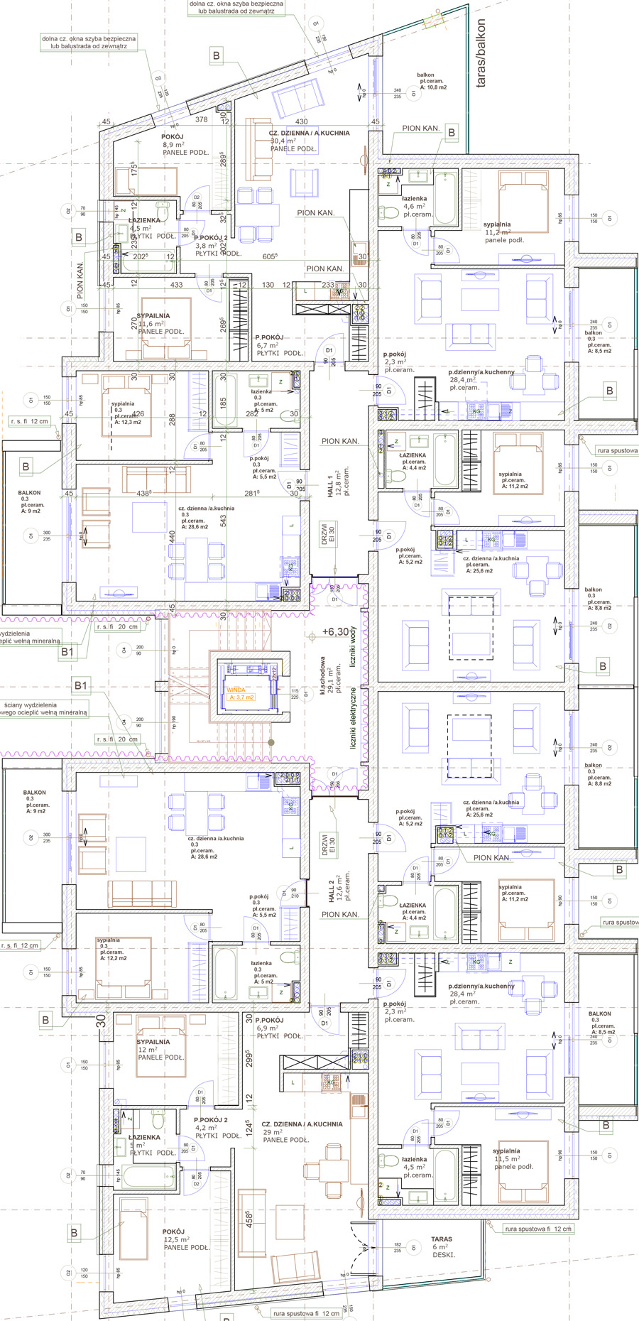
Dostępne mieszkania - II Piętro