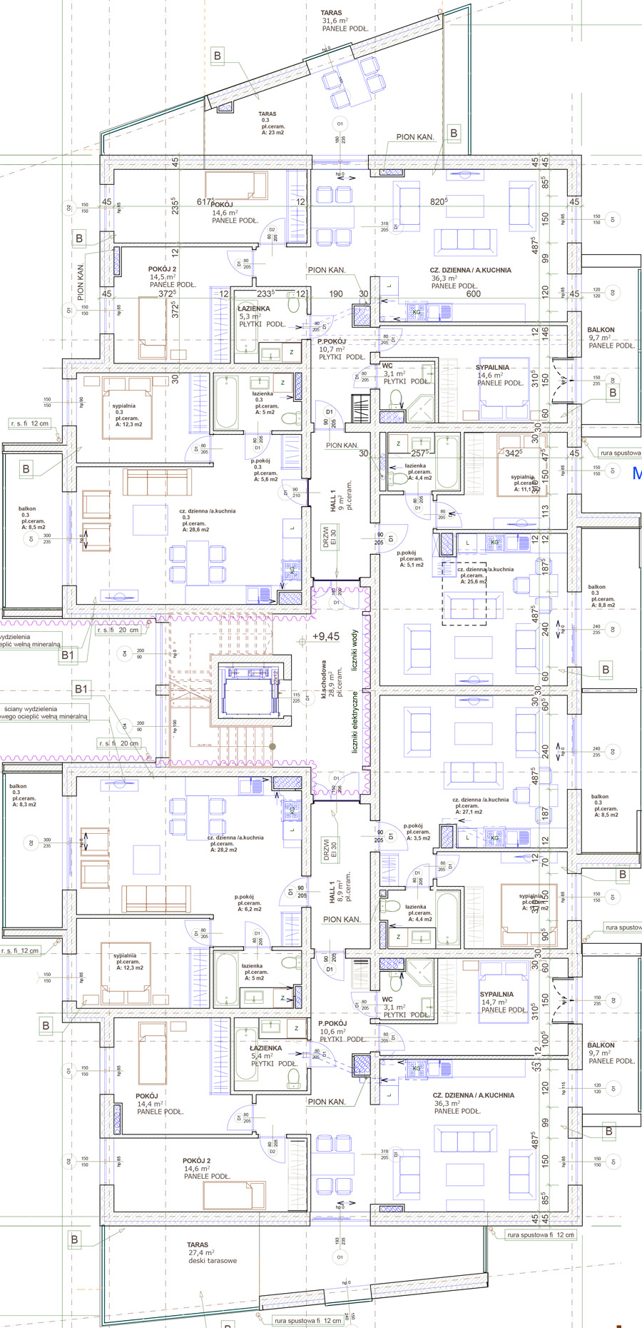
Dostępne mieszkania - III Piętro